/
/
Проектирование бассейнов

Проектирование бассейнов

Проектирование бассейна – важный этап, предшествующий его обустройству. Опыт компании «Акватория» показывает, что профессиональное проектирование бассейна дает возможность снизить капитальные и эксплуатационные затраты на 25-30%. Действуя интуитивно, без проекта, полагаясь на мнение друзей и знакомых, вы рискуете превысить расходы, оптимальное количество которых устанавливается расчетным путем.

Риск – дело благородное, но не в строительстве, где все подчинено жестким строительным нормам и правилам. Но это не значит, что вы получите скучный типовой бассейн. Мы учтем все ваши идеи и рекомендации дизайнера, и на выходе вы получите именно то, что задумали.
Записаться
на презентацию
Угостим вкусным кофе или чаем
Расскажем все о бассейнах
Предложим оптимальное решение вашей задачи
Покажем образцы оборудования

Основные этапы проектирования бассейна

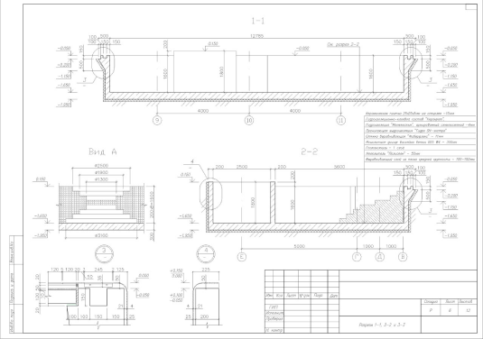
Пример проекта бассейна

На первом этапе мы определим назначение и форму вашего бассейна. После согласования перейдем к расчету нагрузок с конструктивом и созданию рабочего проекта. Трехмерная модель бассейна отразит его форму, параметры и габариты. Помимо реалистичного представления внешнего облика ЗD-моделирование позволит:
  • определить оптимальную площадь технического помещения, необходимого для установки оборудования;
  • рассчитать точное количество требуемых материалов – труб, фитингов и т.п.;
  • запланировать технологические отверстия под закладные элементы.

Далее мы разработаем экономически обоснованные технические условия подключения бассейна к системам энерго-, тепло-, водоснабжения и водоотведения. И в заключение представим рекомендации по выбору систем вентиляции, кондиционирования, нагрева, фильтрации и дезинфекции.

Итогом работы по проектированию бассейна является полный пакет рабочих документов, отражающий все этапы работ: от нулевого цикла до финишной отделки. Этот комплект вы сможете передать строителям с уверенностью, что в нем учтены все детали: от расчета сечения арматуры до дезинфекции воды.

Реализованные проекты

Начать

Индивидуальный проект бассейна

Ответьте на простые вопросы и получите первичную консультацию по проектированию бассейна
Далее

Индивидуальный проект бассейна

Ответьте на простые вопросы и получите первичную консультацию по проектированию бассейна
Размеры бассейна
Назад
Далее
Основные параметры
Ответьте на простые вопросы и получите первичную консультацию по проектированию бассейна

Индивидуальный проект бассейна

Опции
Ответьте на простые вопросы и получите первичную консультацию по проектированию бассейна

Индивидуальный проект бассейна

Назад
Далее
Контакты
Ответьте на простые вопросы и получите первичную консультацию по проектированию бассейна

Индивидуальный проект бассейна